◀ Go Back

135 Third Avenue

R17

$399,900

Open House

Saturday, October 11, 2025 from 02:00 PM - 04:00 PM

General Information

Description

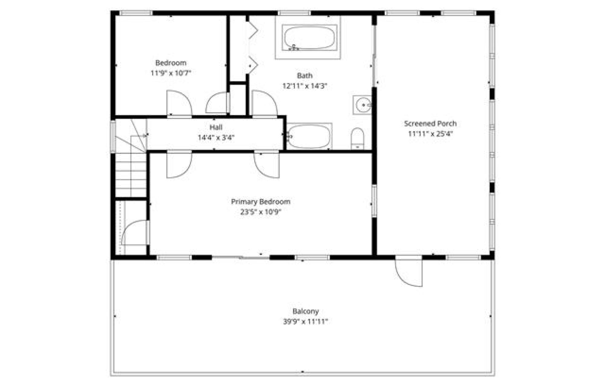
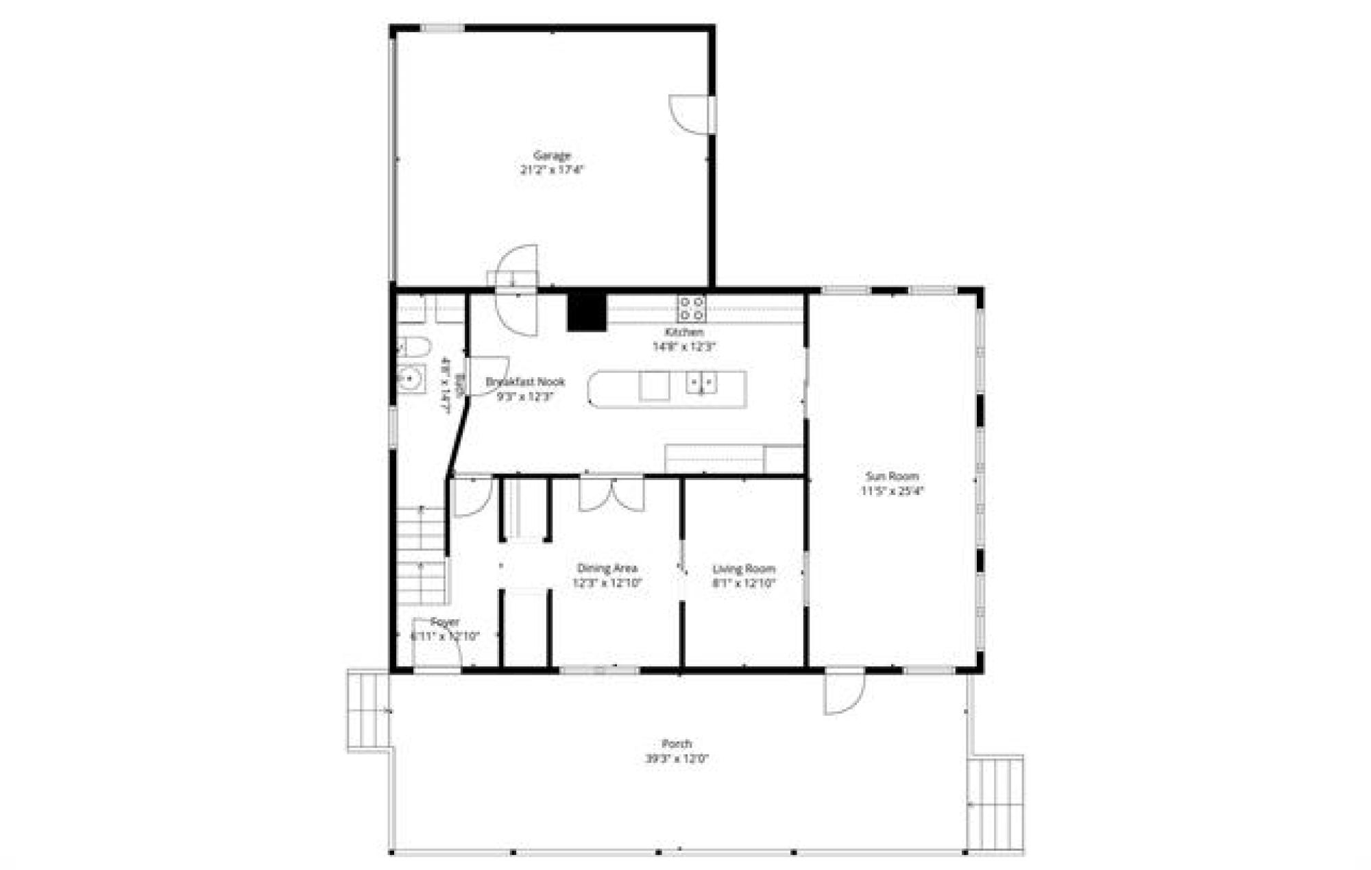
Absolutely magical acreage property only 45 minutes south of Winnipeg. Incredible 100 plus year old farm house on a rare 42.67 acreage mixture of pasture, crops, river & forest/bush. Formerly a 4 bedroom was converted to a 2 bed w/lots of space including a massive 5 piece bath. Primary bedroom being used as an additional living area has large closet & patio doors to deck. Well appointed main floor w/eat in kitchen & convenient 2 piece bath. Attached double garage, two 3 season sunrooms (upper and lower), 2 decks upper & lower level, grain bin converted to be used for chickens, 48' x 78' pole shed ideal for storage of large equipment, RV, trailers & more, Shingles 2021, furnace & water tank 2020. Only 4 owners in 100 years! Incredible amount of options including hunting, fishing, quadding, snowmobiling, livestock and more. Two titles, ultra low taxes, municipal water,. Stunning replica stove, fridge, washer/dryer all included. Step back in time to this rare property that is walking distance distance to park, baseball/soccer fields, playground/recreation center and more in this amazing family friendly community. Husqvarna ride on lawn mower & generator also included! Very flexible possession. Act Fast!

Home Location

135 Third Avenue, R17

Share this Property

◀ Go Back