◀ Go Back

486 North Point Boulevard

Aurora at North Point

$419,900

General Information

Description

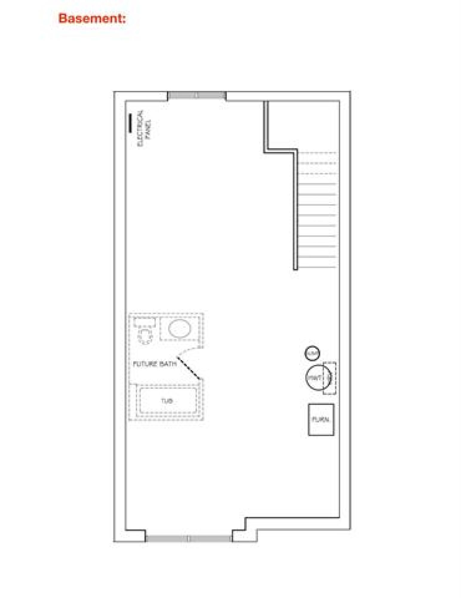
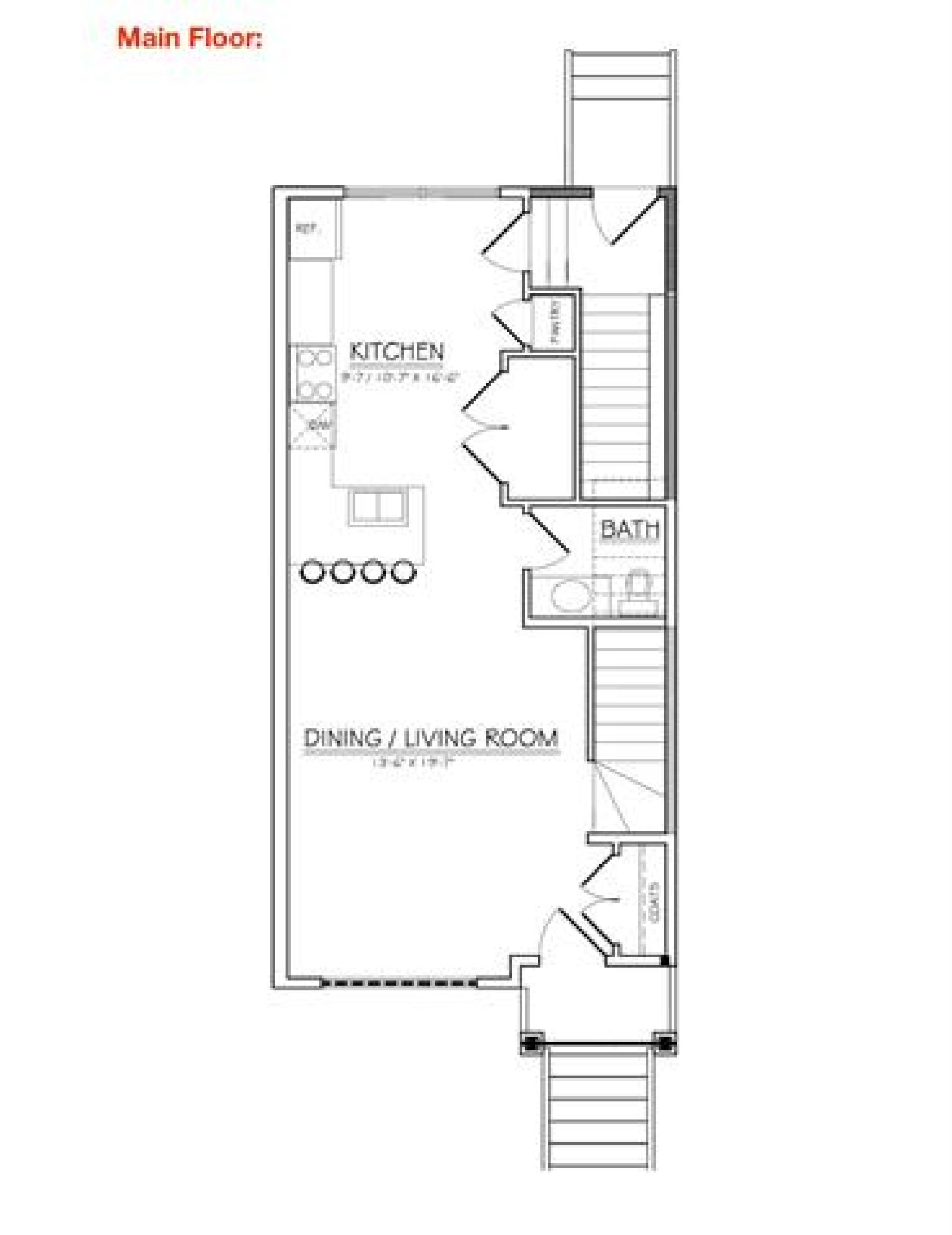
Beautifully constructed 1,286 sqft home featuring premium finishes included as standard, with no upgrade costs. The bright, open-concept main floor boasts 9-foot ceilings and a modern kitchen with quartz countertops that extend into all bathrooms. Enjoy central A/C, already included, ensuring comfort in every season. Upstairs, the primary suite offers a 4-piece ensuite and walk-in closet, along with two additional bedrooms, another full bathroom, and a second-floor laundry room. The basement is prepared for future development with engineered floor joists for higher ceilings and oversized windows for natural light. Outside, this home includes a concrete front walkway, rear parking pad, wood steps, and full landscaping (sod and rock beds), all already included in the price. Experience superior quality, with plenty of inclusions, making this a move-in-ready new build. Call today for the complete features list or to arrange a private viewing.

Home Location

486 North Point Boulevard, Aurora at North Point

Share this Property

◀ Go Back