◀ Go Back

52 Sherwood Bay

R16

$364,900

Mortgage Calculator

Arthur Enns

Phone:204-346-3503

Email Email

Office: 204-326-3338

Coldwell Banker Preferred Steinbach

1-90 Brandt Street, Steinbach, MB

Phone: 204-326-3338

Email| Website

Share this Property

Description

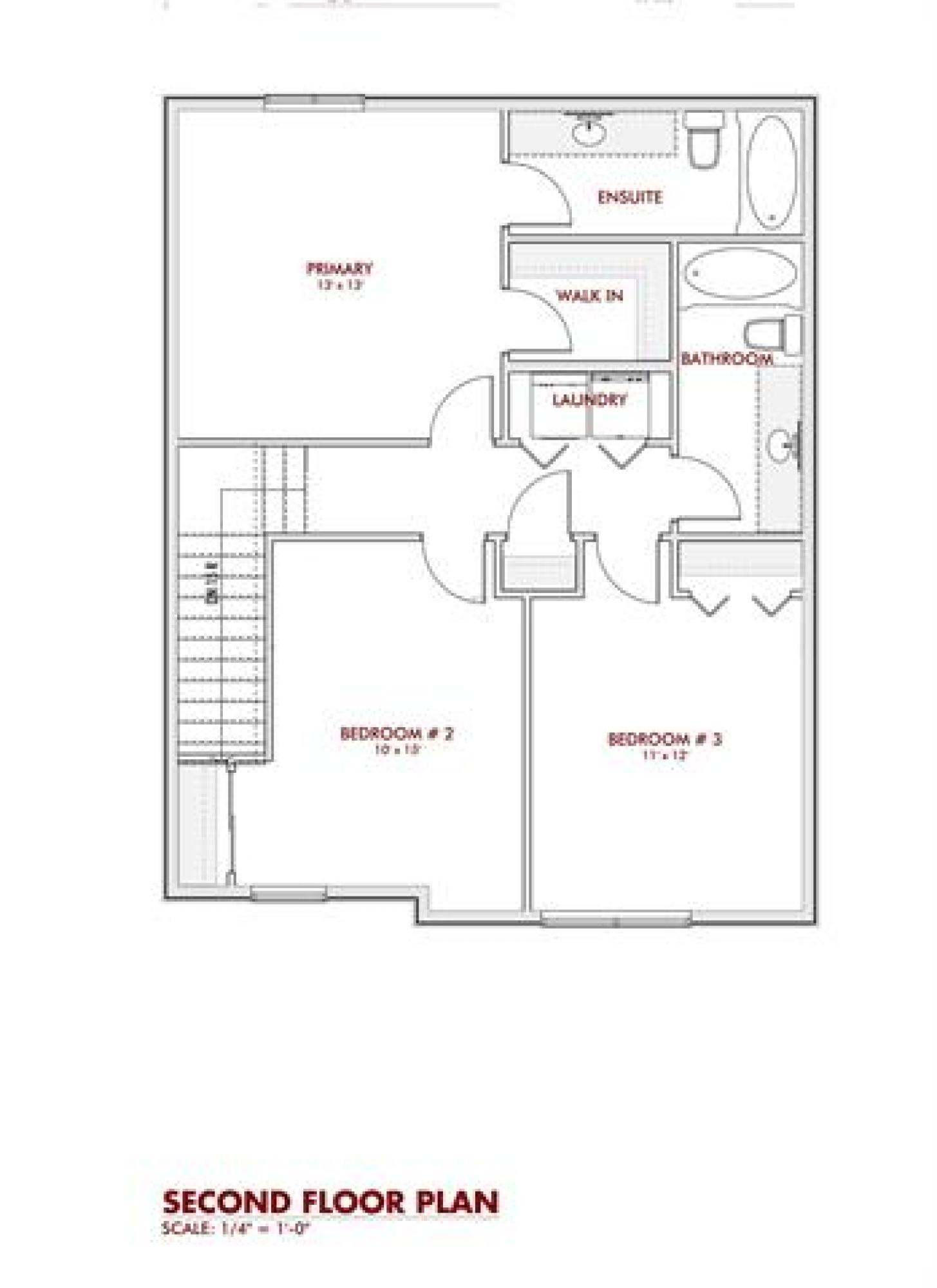
Lay your eyes on this stunning new 1,696 SF 2-storey home to be built, offering 3 bedrooms, 2.5 baths, and a 20' x 22' attached garage. The eye-catching board & batten composite exterior complete with a covered front step provides beautiful curb appeal. Step inside to an open-concept main floor filled with natural light! Featuring a spacious living room, dining area with patio doors to the backyard, and a stylish kitchen with custom soft-close cabinetry, pantry, and large island, this home is perfect for family gatherings and entertaining. The main level is complete with a convenient 2pc bath. The second floor offers a primary suite complete with walk-in closet and 4pc ensuite, plus two additional bedrooms, a 4pc bath, and upper-level laundry. Equipped with central air and an electric heat exchange forced-air furnace for year-round comfort. Choose from two thoughtfully selected interior design packages with optional upgrades available. Backed by a 5-Year New Home Warranty, located in a family-friendly neighbourhood close to green space and within walking distance to amenities - this home blends comfort, affordability and style. Photos are of similar build & may not be exact. Call today for details!

General Information

  • Property Type: Single Family
  • Building Type: 2 Storey
  • Bedrooms: 3
  • Bedrooms Above Grade: 3
  • Bathrooms: 2
  • Partial Bathrooms: 1
  • Square Feet: 1696
  • Year Built: 2026

Neighbourhood Information

Home Location

52 Sherwood Bay, R16

Other Homes you may be interested in

◀ Go Back

Browse Homes

Browse by Building Type