◀ Go Back

217 Woodland Way

West St Paul

$607,900

Mortgage Calculator

Connection Homes

B - 9 Ellen Louise Drive, Headingley, Manitoba

Phone: 204-330-0019

Email | Website

Jamie Boschman

Phone:204-989-7900

Email Email

Office: 204-885-8999 |Fax: 204-885-8990

Realty Executives First Choice

559 St. Mary's Road, Winnipeg, MB

Phone: 204-885-8999

Toll-Free: 1-877-885-8991

Fax: 204-885-8990

Share this Property

Description

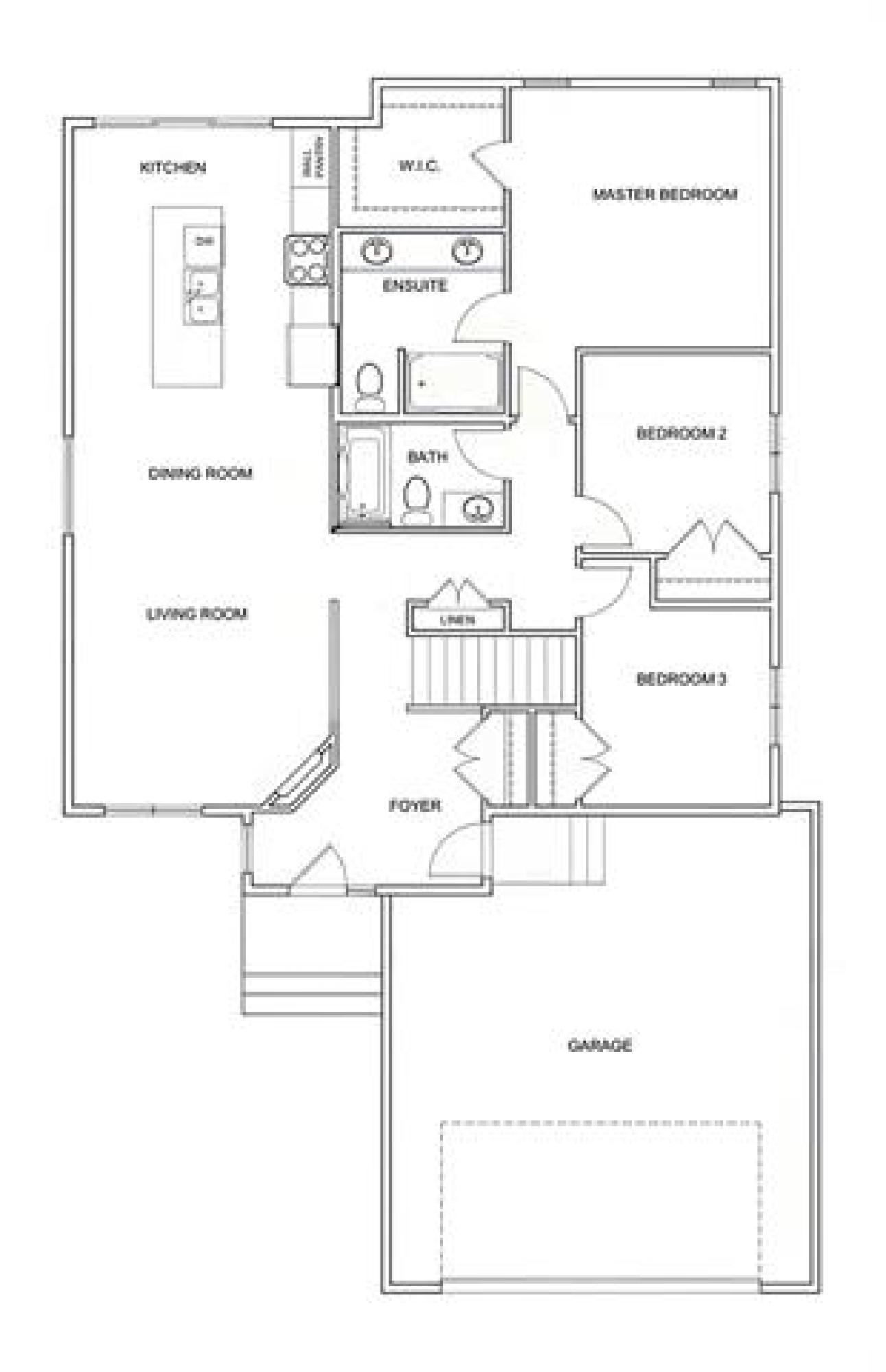
Welcome to 217 Woodland Way in Parkview Pointe, West St Paul! Situated on a beautiful 47x129 lot & to be built by Connection Homes, this 1396 SqFt bungalow will knock your socks off! Fabulous open concept main floor plan w/large living room, spacious dining room & gorgeous custom kitchen w/quartz counters & custom soft close cabinetry! A large island & food storage tower complete the space & make for an ultra-functional kitchen! Down the hall you'll find a large mudroom (leading into the double-attached garage) & a MAIN FLOOR LAUNDRY ROOM! This plan also boasts ample linen storage, a full 4-piece bath & 3 large bedrooms incl the spacious master bedroom w/walk-in closet & full ensuite bath! This home will be built to last w/a piled foundation & the price incl a New Home Warranty, concrete driveway, central A/C, & more! Call today for more info & lets set up a meeting at our showhome in Parkview Pointe. Always happy to help!

General Information

  • Property Type: Single Family
  • Building Type: Bungalow
  • Bedrooms: 3
  • Bedrooms Above Grade: 3
  • Bathrooms: 2
  • Square Feet: 1396
  • Year Built: 2026

Neighbourhood Information

Home Location

217 Woodland Way, West St Paul

Other Homes you may be interested in

◀ Go Back

Browse Homes

Browse by Building Type