◀ Go Back

1-33132 39E (Kokomo) Road

Kokomo

$599,900

Mortgage Calculator

Cheryl Beyak

Phone:

Email Email

Office: 204-989-5000 |Fax: 204-989-7911

Royal LePage Dynamic Real Estate

3 - 1450 Corydon Avenue, Winnipeg, MB

Phone: 204-989-5000

Fax: 204-989-7911

Website

Share this Property

Description

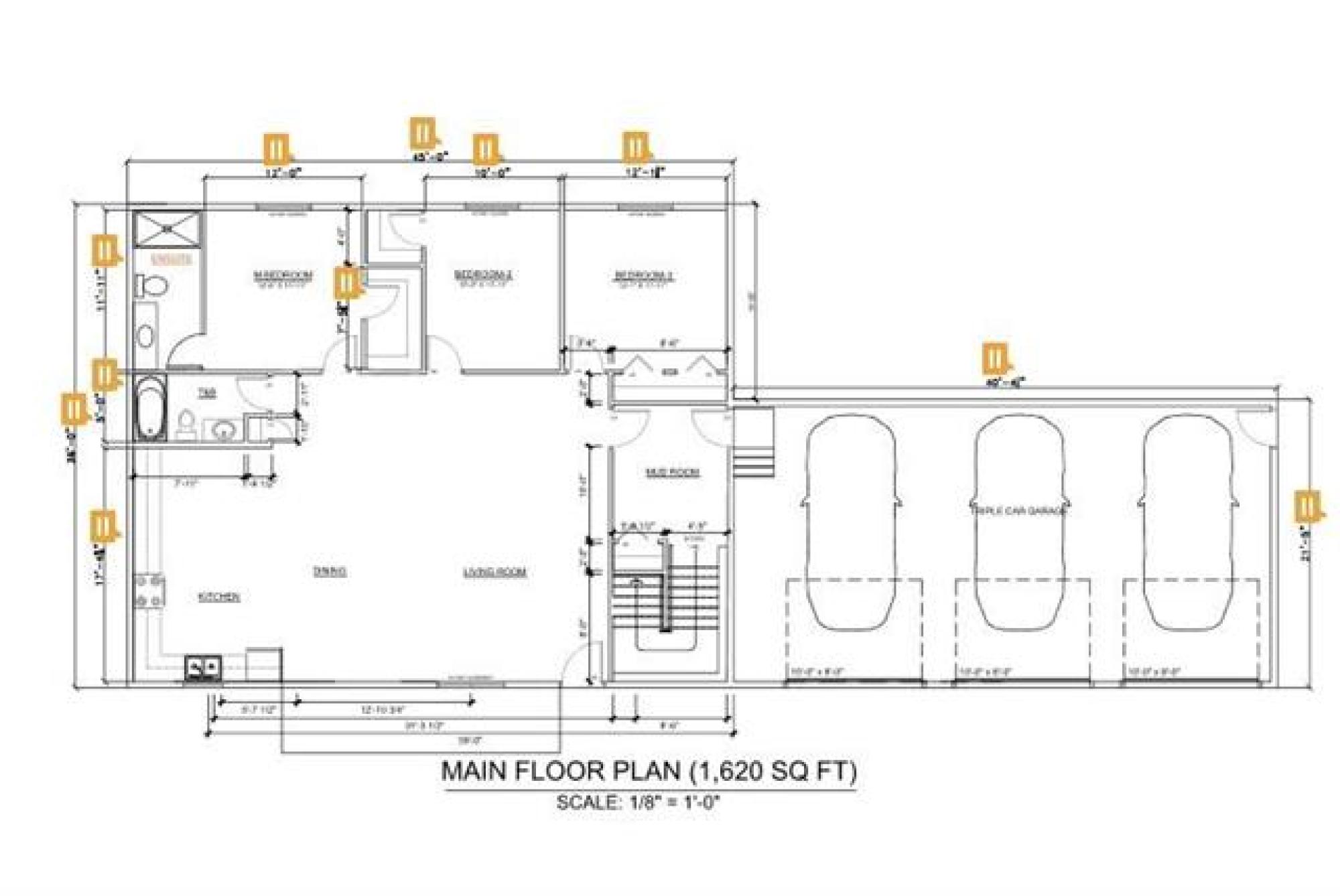
Beautiful TO BE BUILT custom home on 2.46 acres! Welcome to your brand new 5 bed, 3 bath bungalow with finished basement and attached TRIPLE CAR GARAGE. Located on a serene acreage between Steinbach & La Broquerie in the Hanover School District. Kitchen comes with quartz counters and shaker cabinets creating a bright and welcoming open concept living dining area. The main floor is completed with a master bedroom with walk-in closet and en-suite bath, 2 more bedrooms and a full bath. Finished basement will have 2 bedrooms and additional bath, along with a spacious rec room. Bsmt is ICF construction with HRV to ensure warmth and heat efficiency. Comes with 5 year New Home Warranty. Subject to final subdivision approval. Buyer to do own due diligence. Dimensions and square footage taken from plan. Option to leave basement unfinished for homeowner to complete. Option to purchase the lot for $119,900.

General Information

  • Property Type: Single Family
  • Building Type: Bungalow
  • Bedrooms: 5
  • Bedrooms Above Grade: 3
  • Bathrooms: 3
  • Square Feet: 1620
  • Year Built: 2025

Neighbourhood Information

Home Location

1-33132 39E (Kokomo) Road, Kokomo

Other Homes you may be interested in

◀ Go Back

Browse Homes

Browse by Building Type