◀ Go Back

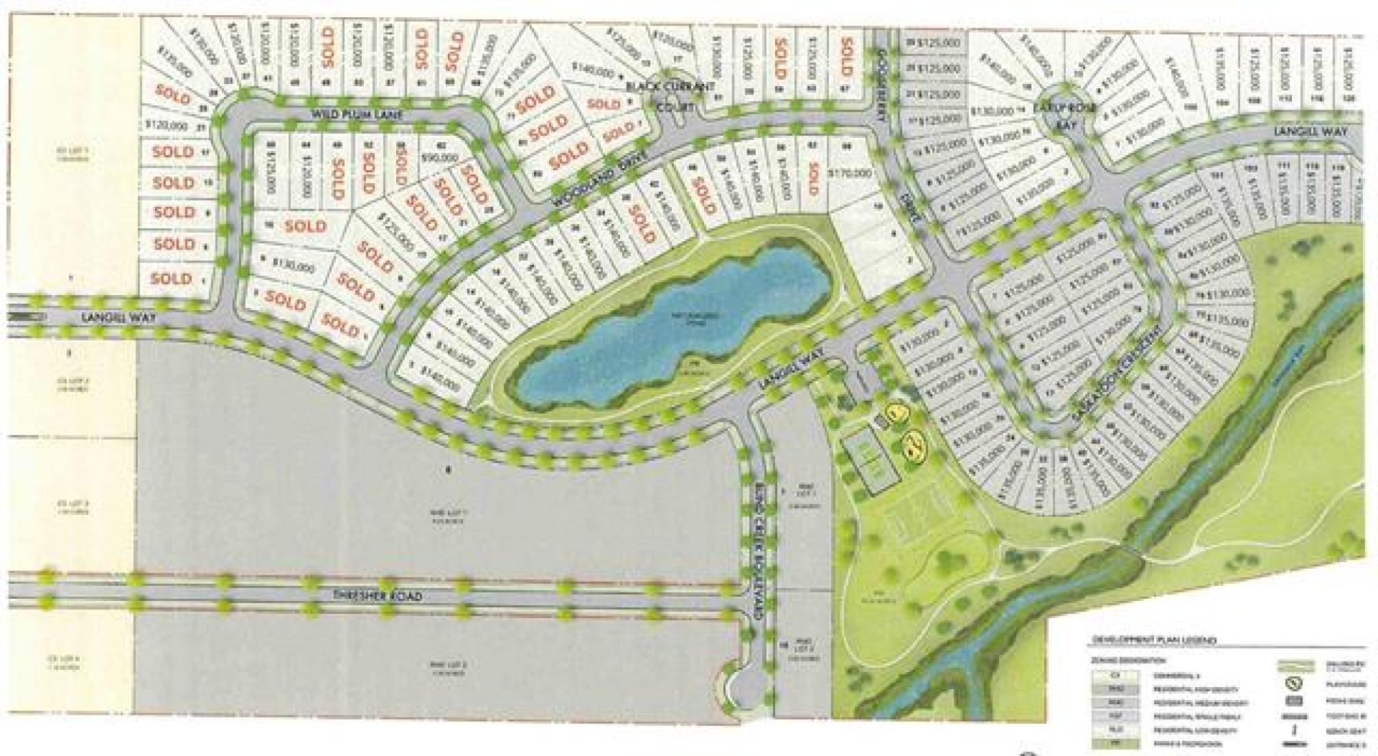
17 Black Currant Court

R16

$120,000

Mortgage Calculator

Bruno Noll

Phone:204-326-9844

Email Email

Office: (204) 326-9844

Royal Lepage Riverbend Realty

105-150 Penfeld Drive, STEINBACH, MB

Phone: (204) 326-9844

Website

Share this Property

Description

17 Black Current Court! Pie-shaped in Cul-de-sac with NO backyard neighbours in the sought-after Langill Farm neighborhood. Langill Farm is located at the north tip of Steinbach and just a short 35 minute commute to Winnipeg. Quick access to convenient shopping, restaurants, clinics and all other essential amenities. Offering recreational options such as a playground, tennis courts, a dog park, and a pond with walking paths! Architectural guidelines and a preferred builders program are in place to protect your biggest investment, your future home. GST applicable. Call for more details.

General Information

  • Property Type: Lot

Neighbourhood Information

Home Location

17 Black Currant Court, R16

Other Homes you may be interested in

◀ Go Back

Browse Homes

Browse by Building Type