◀ Go Back

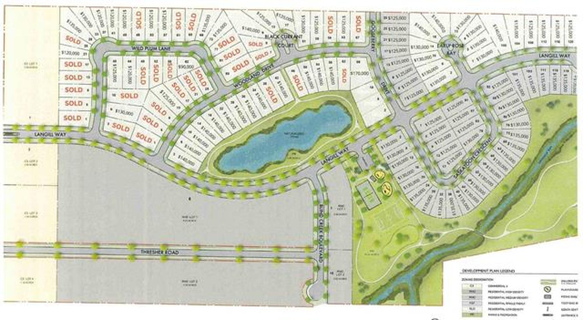
18 Woodland Drive

R16

$140,000

Mortgage Calculator

Bruno Noll

Phone:204-326-9844

Email Email

Office: (204) 326-9844

Royal Lepage Riverbend Realty

105-150 Penfeld Drive, STEINBACH, MB

Phone: (204) 326-9844

Website

Share this Property

Description

18 Woodland is a huge 66'x151' lot that backs onto a walking path and pond --- NO BACKYARD NEIGHBOURS. Choose your builder and get READY to built in Langill Farm! Langill Farm is located at the north tip of Steinbach and just a short 35 minute commute to Winnipeg. Quick access to convenient shopping, restaurants, clinics and all other essential amenities. Offering recreational options such as a playground, tennis courts, a dog park, and a pond with walking paths! Langill Farm offers up to 23% more greenspace than other developments. Architectural guidelines and a preferred builders program are in place to protect your biggest investment, your future home. GST applicable. Call for more details.

General Information

  • Property Type: Lot

Neighbourhood Information

Home Location

18 Woodland Drive, R16

Other Homes you may be interested in

◀ Go Back

Browse Homes

Browse by Building Type