◀ Go Back

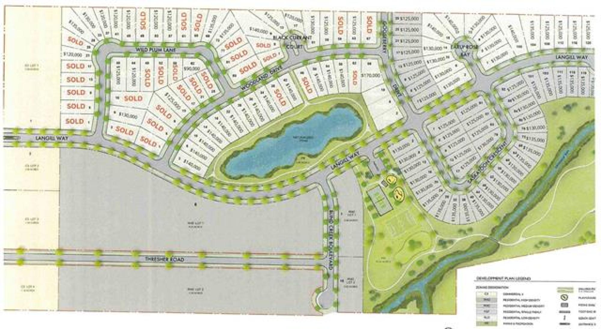
41 Wild Plum Lane

R16

$120,000

Mortgage Calculator

Bruno Noll

Phone:204-326-9844

Email Email

Office: (204) 326-9844

Royal Lepage Riverbend Realty

105-150 Penfeld Drive, STEINBACH, MB

Phone: (204) 326-9844

Website

Share this Property

Description

NO backyard neighbours at 41 Wild Plum Lane. Choose your own builder and get READY to built in Langill Farm! Langill Farm is located at the north tip of Steinbach and just a short 35 minute commute to Winnipeg. Quick access to convenient shopping, restaurants, clinics and all other essential amenities. Offering recreational options such as a playground, tennis courts, a dog park, and a pond with walking paths! Langill Farm offers up to 23% more greenspace than other developments. Architectural guidelines and a preferred builders program are in place to protect your biggest investment, your future home. GST applicable. Call for more details.

General Information

  • Property Type: Lot

Neighbourhood Information

Home Location

41 Wild Plum Lane, R16

Other Homes you may be interested in

◀ Go Back

Browse Homes

Browse by Building Type