


As well-received as the cool multi-level condominiums at River Heights Landings have been, their designers still took the time to see how they could make a good thing even better.
After listening to the feedback from buyers and prospective customers, they found many buyers -- particularly empty nesters -- preferred a more user-friendly design.
"People told us that while they loved everything in the first phase's multi-level units -- their quality finishes, high ceilings, layouts and bright interiors -- that their multi-level structure didn't work for everyone," said the project's lead realtor, Royal LePage Top Producers' David De Leeuw. "After hearing what the public wanted, our designers went back to work and came up with a new design for phase two of the project. Now, everything is going to be on one level."
The phase one condominiums were two-and-a-half-storey designs with multiple levels within (including a third-level den).
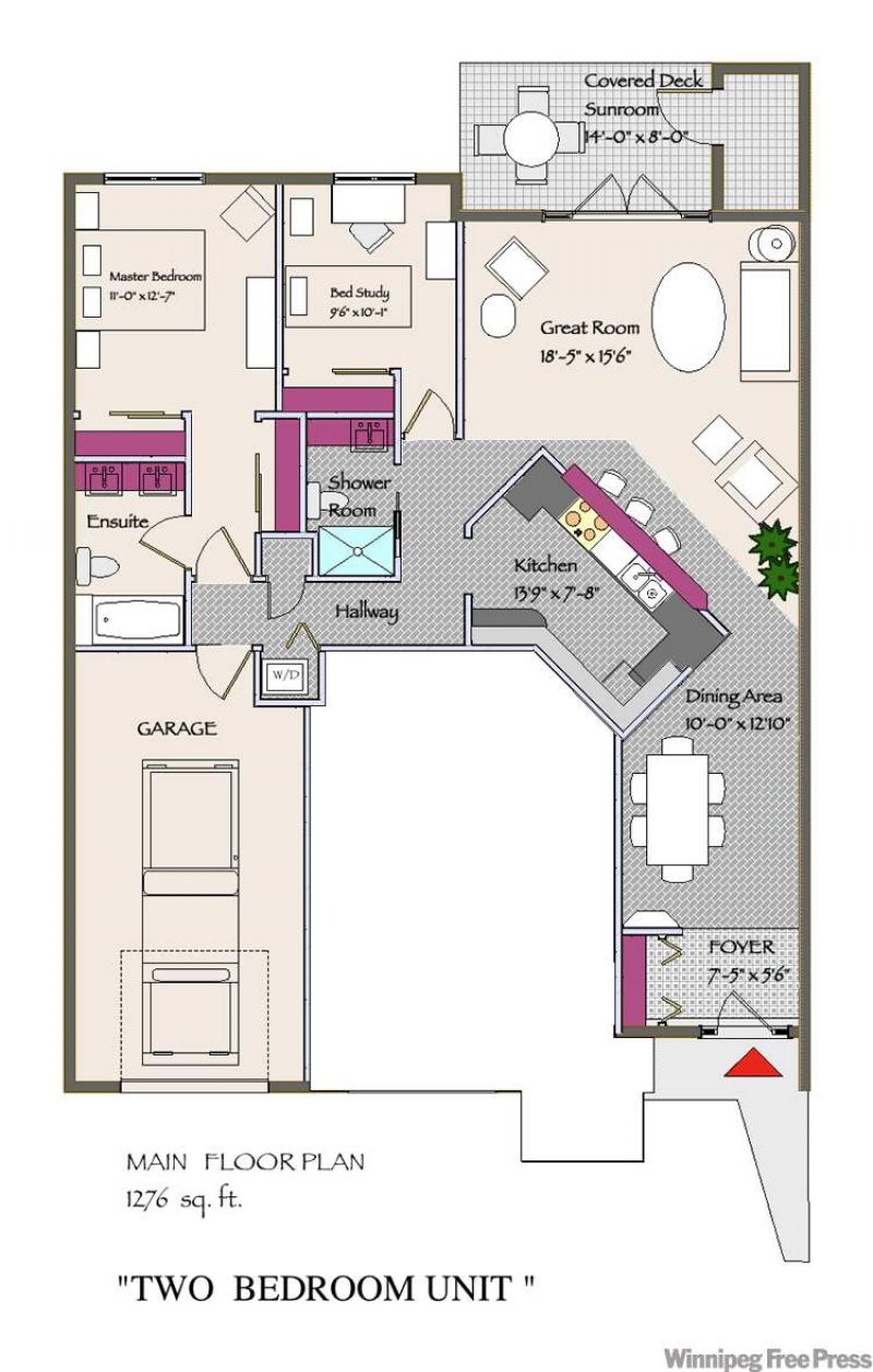
The units in phase two will be two and three-bedroom units. The two-bedroom ground-level units will check in at 1,276 square feet, while the three-bedroom, second-storey units will be an impressive 1,920 square feet. All units will have two full baths.
"The functionality of the units is going to be tremendous," De Leeuw said. "Owners will be able to drive directly into the garage for units on either level; with ground-level units, they'll then be able to walk directly into the main floor. From there, everything will be on one level. Doorways will be exceptionally wide, and there'll be an open-concept great-room area with gourmet kitchen, breakfast bar and a huge living room. There will also be a patio off the great room that could be closed off with a sunroom, as well as additional courtyard space beside it."
Meanwhile, the expansive three-bedroom units -- perched stylishly above the two-bedroom units -- feature a floor plan with a unique combination of space, functionality and style.
"Both the master suite (nearly 17 feet by 12 feet) and great room (almost 14 feet by 27 feet) will offer all kinds of space," De Leeuw said, adding residents will be able to drive into the garage at ground level and take a set of stairs up directly into the unit. "There'll also be a balcony situated so it's very private. You won't be able to see into the patio and courtyard below, so everyone's privacy is assured. You get two balconies. One will be facing east, the other west."
As for finishes, De Leeuw said prospective buyers can expect the style and quality that were the hallmark of the condominiums in phase one, with two distinct finishing packages to choose from.
"The first level, which applies to both the two- and three-bedroom units, is the A package, which features standard modern kitchen cabinetry with laminate countertops, three appliances (in black or white) plus microwave hood fan, wall-to-wall carpet and vinyl flooring. Buyers also get one surface parking stall next to the attached garage."
The B-1 finishing level makes the interior of either unit more luxurious, with upgraded European-design kitchen cabinetry, granite countertops, upgraded appliances, hardwood and ceramic tile floors and wall-to-wall carpeting.
"Either way, you get a condominium that's richly finished," De Leeuw said. "The two-bedroom A package is $315,000, while the B-1 package is $357,000. It's much the same with the three-bedroom finishes -- the A package is $360,000, while the B-1 is $407,000. You can also choose a B-2 package for either unit that includes a covered parking stall for a small upcharge."
While River Heights Landings' first complement of condominiums is livable, the second phase figures to take the livability quotient to a higher level.
"Empty nesters looking to buy a livable condominium in a great, central location needn't look any further. These new units are designed to enable people to age in place in style and convenience. They're simply a superb design."
For more information on River Heights Landings' new one-level condos -- the complex is located at 1810 Corydon Avenue -- call David De Leeuw at 989-6900.
lewys@mts.net